湯沢会計事務所の開業物件情報

医院開業の立ち上がりの良さは「場所」で決まる

  • お問合せ
    • 物件へのお問合せ
    • 物件掲載へのお問合せ
  • エリアから探す
    • 東京
    • 神奈川
    • 埼玉
    • 千葉
    • 茨城
    • 栃木
    • 群馬
    • その他地域
  • タイプから探す
    • 一般物件
    • 商業物件
    • 継承物件
    • レント物件
  1. topページ
  2. » 東京の開業物件
  3. » クリニックステーション永福町/仮称(as)

エリアから探す

  • 東京
  • 神奈川
  • 埼玉
  • 千葉
  • 茨城
  • 栃木
  • 群馬
  • その他地域

タイプから探す

  • 一般物件
  • 商業物件
  • 継承物件
  • レント物件

お問合せ

  • 物件へのお問合せ
  • 物件掲載へのお問合せ
  • 湯沢会計事務所

クリニックステーション永福町/仮称(as)

クリニックステーション永福町
タイプ一般物件
募集科目内、小、皮、眼、心、泌
所在地東京都杉並区永福町2丁目
交通京王井の頭線永福町駅徒歩3分
竣工2027年1月末予定
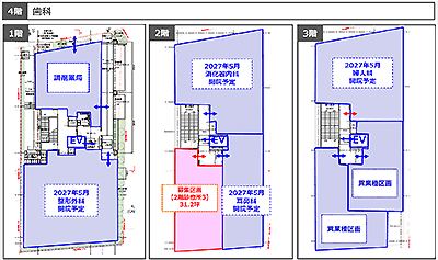
募集概要
4階歯科
3階5婦人科開院予定
2階2消化器内科開院予定
2階331坪 22000円/坪
2階4耳鼻科開院予定
2階5整形外科開院予定
図面クリニックステーション永福町
周辺地図
備考 契約形態 :定期建物賃貸借契約
契約期間 :20年間
敷金 :月額賃料の6ヶ月分
仲介手数料 :月額賃料の1ヶ月分(指定業者あり)
・駐輪場35台(予定
・最大7科目のエリア最大級の医療モール計画
お問合せメールフォームよりお気軽にお問合せください。

エリアから探す

  • 東京
  • 神奈川
  • 埼玉
  • 千葉
  • 茨城
  • 栃木
  • 群馬
  • その他地域

タイプから探す

  • 一般物件
  • 商業物件
  • 継承物件
  • レント物件

お問合せ先

  • 物件へのお問合せ
  • 物件掲載へのお問合せ
  • 湯沢会計事務所
Copyright(C)2010 湯沢会計事務所 All Rihgts Reserved.